EXCLUSIVITE. Paris 15ème. Au sein d’un quartier vivant et très prisé, rue Saint-Charles – avenue Emile Zola, entre les métros Boucicaut, Saint-Charles et Javel, très agréable 4 Pièces traversant de 70m2 entièrement A RENOVER.
Situé au 4ème étage par ascenseur d’un immeuble des années 60, cet appartement BAIGNÉ de SOLEIL dispose d’un plan fonctionnel et modulable.
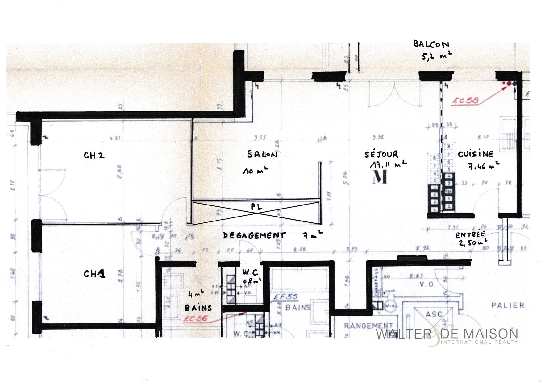
Il se compose d’une entrée, d’un double séjour de 27m2, ouvert sur un balcon de 5,2 m2 exposé plein Sud, d’une cuisine séparée (possibilité de créer une cuisine US ou semi-ouverte) d’un dégagement avec nombreux placards intégrés, de deux chambres de 9m2 et 12 m2 exposé à l’EST, d’une salle d’eau et de toilettes séparées. Chauffage par le sol. Charges mensuelles : 250 euros incluant le chauffage et l’eau chaude. Copropriété sécurisée et bien entretenue avec gardienne à demeure. TRES BEAU POTENTIEL. A VOIR !!!
Caroline NEYROUMANDE (EI) Agent Commercial – Numéro RSAC : 533 023 693 – Paris.
COPROPRIÉTÉ :
Nombre de lots: 164
Nombre de lots d’habitation : 164
Charges annuelles : 3000 €
Procédures en cours : Procédure en cours













